- 株式会社シンク・グローバル
- 三郷市鷹野5丁目55の新築一戸建て






住宅性能表示制度において6項目の最高等級取得のうえ長期優良住宅の安心してご購入できる物件です。
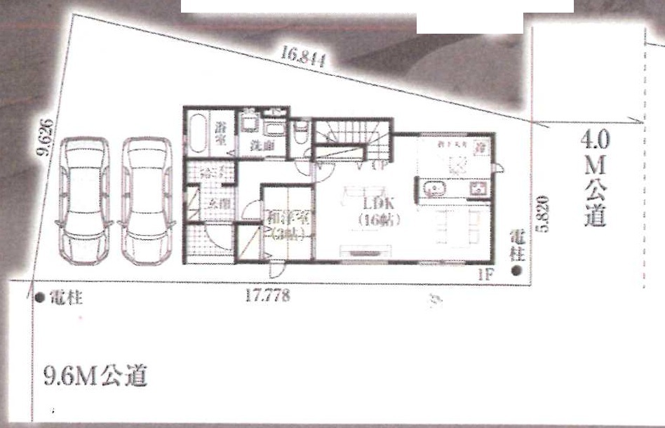
敷地40坪の南9.6m×東4m角地の陽光あふれる開放的な邸宅です。
敷地40坪の南9.6m×東4m角地の陽光あふれる開放的な邸宅です。
物件詳細情報
物件No.20000427824
| 所在地 | 埼玉県三郷市鷹野5丁目55 | ||
|---|---|---|---|
| 交通 | つくばエクスプレス「三郷中央」駅バス15分 バス停「寄巻橋東」停歩6分 | ||
| 間取 | 4LDK | ||
| 土地面積 | 132.51m² 実測 | ||
| 建物面積 | 99.78m² 実測 | ||
| 構造・規模 | 木造 2階建て | 築年・入居 | 2025年12月下旬 |
| バルコニー | 南向き | 建物現況 | 建築中 |
| 建築確認番号 | 第HPA-25-10049-1号 | 駐車スペース | 2台可(並列) |
| 引渡時期 | 期日指定有(2025年12月下旬) | 国土法届出 | 不要 |
| 地目 | 宅地 | 用途地域 | 第一種住居地域 |
| 建ぺい率 | 50% | 容積率 | 100% |
| 都市計画 | 市街化区域 | 権利種類 | 所有権 |
| 接道 | 南西側9.6M公道に17.78M接道 東側4M公道に5.82M接道 |
取引態様 | 専任媒介 |
| 販売スケジュール | 先着申込 | ||
| 設備 | 公営水道、本下水、個別LPG | ||
| 省エネ性能表示 | エネルギー消費性能:★★★ 断熱性能:5段階 |
||
- ※価格は物件の代金総額を表示しており、消費税が課税される場合は税込み価格です。(1,000円未満は切り上げ。)
税率は引き渡し時期により異なりますので、各物件の詳細につきましてはお問い合わせください。 - ※敷地権利が借地権のものは価格に権利金を含みます。
- ※制作中に内容が変更される場合もありますので、あらかじめご了承ください。
- ※購入の前には物件内容や契約条件についてご自身で十分な確認をしていただくようにお願いいたします。
- ※完成予想図はいずれも外構、植栽、外観等実際のものとは多少異なることがあります。
- ※CG合成の画像の場合、実際とは多少異なる場合があります。
周辺地図
- 現地販売会
- 毎週土日祝開催 11:00〜16:00 直接現地へご来場ください
周辺施設一覧
- ショッピングセンター
- スーパー
- コンビニ
- ドラッグストア
- ホームセンター
- 飲食店
- その他店舗
- 商店街
- 大学
- 専門学校
- 高校・高専
- 中学校
- 小学校
- 保育園
- 幼稚園
- 公民館・児童館
- 病院
- 郵便局
- 役所
- 図書館
- 金融機関
- 警察・消防
- 趣味・娯楽施設
- 公園・運動施設
- 周辺の街並み
- 駅
- その他
お問い合せ先
- 株式会社シンク・グローバル
- お電話でのお問い合わせは
0120-799-905「ホームページを見た」とお問い合わせください - 千葉県松戸市日暮6-192
- 営業時間:AM10:00~PM6:00
- 免許番号:千葉県知事(3)第16932号
- 株式会社シンク・グローバル
- 三郷市鷹野5丁目55の新築一戸建て




